Current licensing applications
This webpage details licensing applications currently in process under the Licensing Act 2003.
Woolverstone Marina & Lodge Park
| Reference/Type: | Section 17 / New Premises Licence Application |
|---|---|
| Premise: | Woolverstone Marina & Lodge Park, Woolverstone, Ipswich, Suffolk IP9 1AS |
| Applicant: | Marina Developments Ltd |
| Public Consultation start date: | 3 January 2026 |
| Public Consultation end date: | 30 January 2026 |
| Representations to: | Email the Licensing Team |
| Application Summary: | Marina and Lodge Park with 24-hour Sale of Alcohol OFF the premises. Supply provided during fulfilment hours |
| Documentation: | Read Woolverstone Marina & Lodge Park application, or View Woolverstone Marina & Lodge Park Site Plan |
Aldi, Waldingfield Road, Sudbury
| Reference/Type: | Section 17 New Premise Licence Application |
|---|---|
| Premise: | Aldi, Waldingfield Road, Sudbury, Suffolk, C010 2YH |
| Applicant: | Aldi Stores Limited |
| Public Consultation end date: | 9 February 2026 |
| Application Summary: | Supermarket with Sale and Supply of Alcohol OFF the premises |
| Documentation: | Please read Aldi premises licence application, Please read Aldi plan |
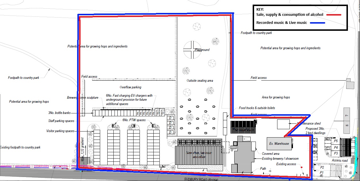
Gaia
| Reference Type: | Section 17/New Premise Licence Application |
|---|---|
| Premise: | Gaia, The Street, East Bergholt, Colchester CO7 6TB |
| Applicant: | Jacques Catering Ltd |
| Public Consultation end date: | 19 February 2026 |
| Application Summary: | Village Cafe Bistro with Sale and Supply of Alcohol for consumption ON the premises |
| Documentation: | Please read Gaia application form, please read Gaia plan. |
The Black Horse
| Reference/Type: | Section 17/New Premise Licence Application |
|---|---|
| Premise: | The Black Horse, Lower Street, Stratford St Mary, Colchester CO7 6JS |
| Applicant: | Kandasamy Nirmalan |
| Public Consultation end date: | 19 February 2026 |
| Application Summary: | Convenience Store with Sale and Supply of Alcohol OFF the premises |
| Documentation: | Please read The Black Horse application, please read The Black Horse plan. |
Utopia Padel
| Reference/Type: | Section 17/New Premise Licence Application |
|---|---|
| Premise: | Utopia Padel, Copdock & Washbrook Playing Fields, Ipswich IP8 3JN |
| Applicant: | Padel Utopia Limited |
| Public Consultation end date: | 23 February 2026 |
| Application Summary: | Sale & Supply of Alcohol for consumption ON the premise. |
| Documentation: | Please read Utopia Padel application, please read Utopia Padel Appendix A Conditions, please read plan1, please read plan 2. |
Boathouse Bistro
| Reference/Type: | Section 17/New Premise Licence Application |
|---|---|
| Premise: | Boathouse Bistro, 42 Cross Street, Sudbury CO10 2DL |
| Applicant: | Ismet Kurnaz |
| Public Consultation end date: | 24 February 2026 |
| Application Summary: | Sale & Supply of Alcohol On the Premise, Live & Recorded Music Indoors & Late Night Refreshment |
| Documentation: | Please read Boathouse Bistro application, please read Boathouse Bistro Appendix A conditions, please read Boathouse Bistro plan. |
Comment on a licensing application
Representations must be made in writing for the attention of the Licensing Team, Babergh District Council (as the Licensing Authority) at Endeavour House, 8 Russell Road, Ipswich IP1 2BX, or by email to licensingteam@baberghmidsuffolk.gov.uk
We have published guidance on how to comment on a licence.
It is an offence knowingly or recklessly to make a false statement in connection with an application and the maximum fine for which a person is liable on summary conviction for the offence is unlimited.